CONTACT 0415 386 587
CONTACT 0415 386 587
Signed in as:
filler@godaddy.com
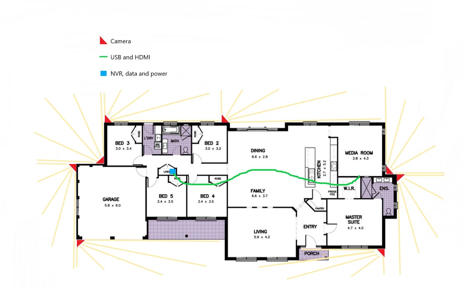
Not sure what your property needs to get the best protection? Or maybe your not sure how many cameras or sensors you need? Below are some common security layouts for CCTV, Alarms and Intercoms to give you an idea of the coverage you will get with various layouts.



Copyright © 2020 Securitive - All Rights Reserved.